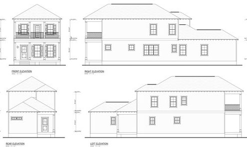
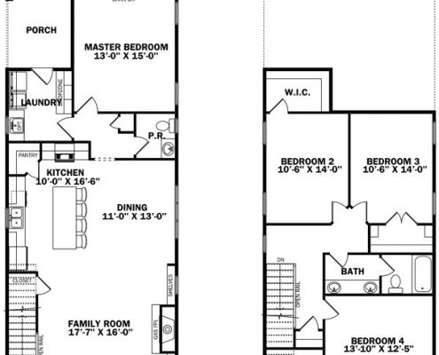
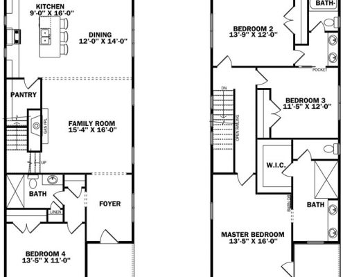
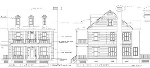
Seven Custom Charleston-Style Single Family Homes
CONSTRUCTION CURRENTLY UNDERWAY
From the low $300s
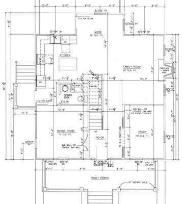
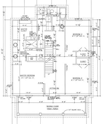
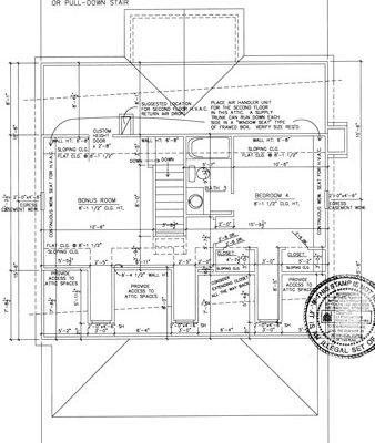
• 4 bedroom, 2.5 – 3 baths
• 2,100 – 3,000 heated square feet
• Custom kitchens with granite countertops
• Lower, upper and/or side porches
• Fiber cement siding
• 30-year architectural shingles
• Optional rear detached garages











































