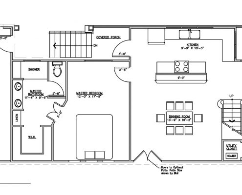
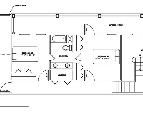
THE CHARLESTON
Energy-efficient construction coupled with craftsman charm. Kitchen features Architect SS appliances, granite counter tops, maple cabinets, porcelain tile and butler’s pantry. 9-foot ceilings throughout with oak hardwood floors, satin nickel finishes, solid-core doors & crown molding. Master suite features frameless glass shower, whirlpool tub, dual vanity.



























































