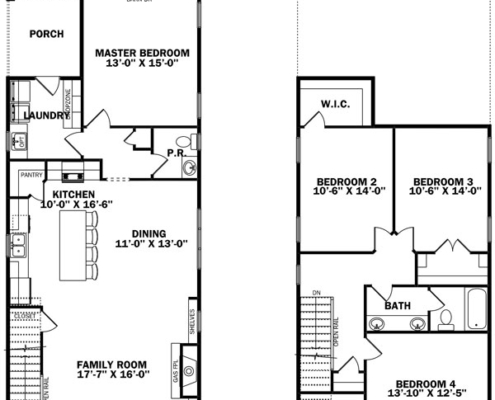
THE MONTAGUE
Another stunning East Towne Village floor plan. This amazing home in Rock Hill, SC, is a custom, Charleston-style single family home with all of the finishes that add character and personality to a home. Featuring custom touches throughout, and clean design, the Montague is your next home!
• 4 bed, 2.5 bath
• Master Suite on main
• 2,050 sq ft



















































